Hamilton Property

powered by Open2view.com
SOLD

Waikato
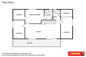
5
2
N/A
245sqm
787sqm
Waikato
proudly marketed by
Tree Town Real Estate Limited
Great Family Home Opportunity
Are you looking for a home with 5 bedrooms and 2 distinct living areas - 1 up and 1 down? This home has space, downstairs it opens out onto a private deck with a fire pit. The upstairs living opens out to a balcony that greets the morning sun. Boasting 2 bathrooms and 3 toilets and a spacious fenced section, this is family living at its best. Situated in the popular Oaklands subdivision, you are close to walkways and parks. The vendors have decided to move on, this is your opportunity.
Question
Upload by Jason Tregurtha
Waikato South
This property was photographed by